石家庄[切换]
  • 装修热线:18031343377
入驻巧装家

高品质互联网家装平台

老房研究院

老房装修文化艺术节中国老房装修标准指南

已为4057位业主提供老房装修服务

免费预约 开工即省30%
  • 您的称呼
  • 手机号码
  • 所在小区
预约热线:18031343377
为了你的利益及我们的口碑,你的隐私将被严格保密。
x 点击进入石家庄站>>
选择其他城市:

您的位置: 巧装家 > 设计案例 >

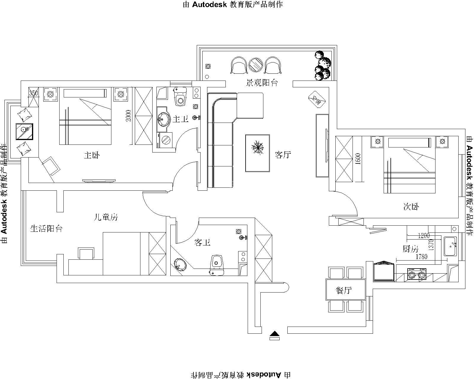
珠峰国际139平现代简约风格设计方案

珠峰国际139平现代简约风格设计方案

小区:
珠峰国际
户型:
复式LOFT
面积:
138.0平米
风格:
现代简约
预算:
4.63万元
设计理念:
本案例的主元素以灰蓝色为基调,搭配原木质感的木制家具及棉麻沙发等,以黑白色作为重要的点缀,营造简洁、现代的空间氛围,整体感舒适自然。客厅空间的布置重点在于家具的选购与色彩及布品的搭配,让每一个细节的铺排都呈现出令人感觉舒适的气氛。
分享到:
肖书宁

肖书宁编号:UZ_2676

级别:

他承诺:
  • 所接的工地均经过国家级的标杠工程施工,平台监理全程严苛监工,15项验收标准,不合格砸掉重做
  • 所接的工地均经过国家级的标杠工程施工,平台监理全程严苛监工,15项验收标准,不合格砸掉重做
  • 从环保设计,环保材料,环保施工,环保检测四个方面要求,承诺环保不达标全额退款
  • 业主提交投诉,30分钟内受理、24小时内上门确认、48小时内协调解决

河北石家庄

从业11年 / 河北石家庄人 / 河北工程大学

  • 本月预约:1个
  • 成交记录 :3条
  • 作品数:4个
效果图 施工图
-珠峰国际139平现代简约风格设计方案
-珠峰国际139平现代简约风格设计方案
-珠峰国际139平现代简约风格设计方案
-珠峰国际139平现代简约风格设计方案
-珠峰国际139平现代简约风格设计方案
珠峰国际139平现代简约风格设计方案

我家按此装修 需要多少钱呢

设计案例点评

加载更多